Die Architekten des Umbaus der Stadtkirche haben zugesagt, dass die Gemeinde zu Beginn des Jahres den Kirchraum einrichten kann. Die gesamten Arbeitenwerden im März beendet sein.
Ursprünglich geplant war die Fertigstellung des Gottesdienstraumes für den 1.Advent 2025. Aber bereits im Laufe des Sommers wurde deutlich, dass der Zeitplan nicht zu halten ist.
Zum Hintergrund:
Die Stadtkirche Chorweiler wurde 1977/78 gebaut und spiegelt den Stil der damaligen Zeit wider. Sie bildet mit den dem Bezirksrathaus und der katholischen Kirche ein den Kern des Stadtbezirks prägendes Ensemble. Im Gebäude waren neben den zahlreichen gemeindlichen Räumen eine Pfarrerwohnung, die sich über zwei Geschosse erstreckte, und eine Küsterwohnung. Die Wohnungen wurden meist sehr schnell aufgegeben, weil die Mieter sich wie auf einem Präsentierteller fühlten.
In den letzten Jahren wurden immer wieder Undichtigkeiten am Dach, defekte Leitungen und zahlreiche andere Schäden am Gebäude festgestellt. So entstand 2018 die Überlegung das Gebäude zu sanieren und dabei auch zu modernisieren. Ziel der Modernisierung soll sein, das Foyer und den Gottesdienstbereich heller, freundlicher und damit einladender zu gestalten. Auch der Wunsch eine Außenfläche zu schaffen, kann nun mit dem Bau einer kleinen Dachterrasse realisiert werden. Der Eingang vom Pariser Platz wird neugestaltet und deutlich aufgewertet. Das sollte keine Abwendung von unseren katholischen Geschwistern sein, deren Eingang unserem bisherigen Haupteingang genau gegenüber platziert ist. Vielmehr möchte sich die Kirchengemeinde gegenüber der Gesellschaft öffnen.
Eine behindertengerechte Erschließung des Gebäudes durch zwei Aufzüge wird ebenfalls erfolgen.
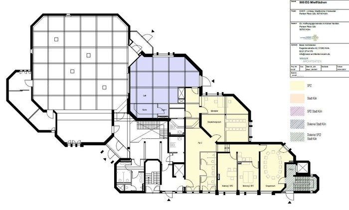
Bereits bei den ersten Überlegungen wurde deutlich, dass die Gemeinde zur Finanzierung Teile der bislang selbst genutzten Flächen vermieten muss. So bleibt im EG nur Foyer und Gottesdienstraum bei der Gemeinde. Das 1. OG wird vollständig von der Gemeinde genutzt, während das 2. Und 3 OG vermietet werden.

Grundriss EG, farblich gestaltet sind die Mietflächen
Ein Mieter war mit unserer Diakonie (Suchtberatung und Sozialpsychiatrischer Dienst) schnell gefunden. Die Vermietung an den Gesundheitlichen Dienst der Stadt Köln kam nicht zustande, weil der städtische Haushalt hierfür keine Mittel zur Verfügung stellte. So wird ein Teil der Räume nun an eine Kinder- und Jugendpsychotherapeutin vermietet werden.
Nach umfangreichen Planungen konnte im Frühjahr 2023 der Bauantrag gestellt, der ein Jahr später auch genehmigt wurde. Ausschreibungen und Auftragsvergaben führten dazu, dass die ersten Arbeiten im Januar 2025 begonnen wurden.

Neugestaltetes Foyer, links Eingang zum Kirchraum. Die Treppe führt zu den Gemeinderäumen im 1. OG.

Blick in den neugestalteten Gottesdienstbereich
Die Gemeinde darf sich auf einen neuen hellen und einladenden Kirchraum freuen!
Erwin Wittenberg
-Vorsitzender Umbauplanungsausschuss
